- Woonoppervlakte
- Circa 91 m²
- Inhoud
- Circa 282 m³
- Bouwjaar
- Gebouwd in 2001
- Aantal kamers
- 3 kamers (2 slaapkamers)
Het appartement ligt op korte afstand van winkelcentrum Leidschenveen, waar je terecht kunt voor al je dagelijkse boodschappen en diverse voorzieningen. Ook het openbaar vervoer bevindt zich in de directe nabijheid, met goede verbindingen richting Den Haag, Zoetermeer en Rotterdam. Daarnaast zijn de uitvalswegen, waaronder de A4, binnen enkele minuten bereikbaar, wat de ligging bijzonder gunstig maakt.
Voor meer info kijk op pijlstaartplein58.nl
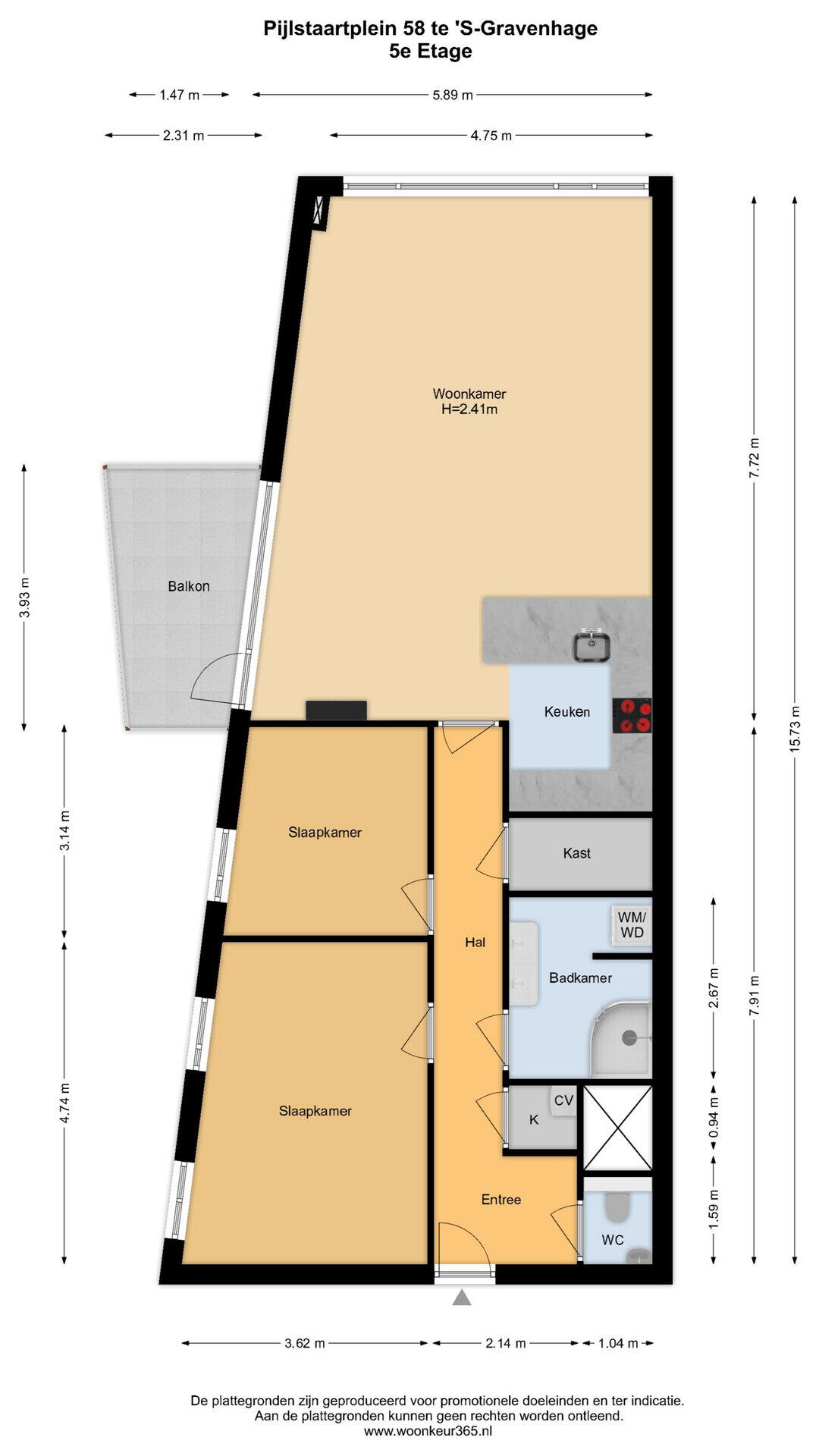
Indeling
Afgesloten hoofdentree met brievenbussen, bellentableau en videofooninstallatie. Vanuit de verzorgde centrale hal zijn de lift en het trappenhuis bereikbaar, die toegang geven tot de 5e verdieping.
Woonverdieping:
De entree bevindt zich in een ruime hal die toegang biedt tot alle vertrekken. Aan de voorzijde ligt de lichte woonkamer met grote raampartijen waardoor er volop daglicht binnenvalt. Vanuit hier is er een prachtig uitzicht over het recreatiegebied de Nieuwe Driemanspolder. De open keuken is voorzien van diverse inbouwapparatuur, waaronder een inductiekookplaat, vaatwasser, oven en koelkast.
Het appartement beschikt over twee slaapkamers van goed formaat. De badkamer is modern uitgevoerd en voorzien van een inloopdouche, dubbele wastafel met meubel en een aansluiting voor de wasmachine en droger. Daarnaast is er een apart toilet aanwezig.
Via de woonkamer is het zonnige balkon bereikbaar, waar je heerlijk kunt genieten van het uitzicht en de rust. In de onderbouw bevindt zich een eigen berging, ideaal voor het stallen van fietsen of het opbergen van spullen.
Wetenswaardig:
- Bouwjaar: 2001;
- Woonoppervlak van 91 m2;
- Energielabel A;
- Eigen parkeerplaats;
- Berging in onderbouw;
- CV-combiketel (2025);
- Actieve VVE: maandelijkse bijdrage € ????;
- Oplevering in overleg;
Interesse in deze woning? Schakel direct uw eigen NVM-aankoopmakelaar in.
Uw NVM-aankoopmakelaar komt op voor uw belang en bespaart u veel tijd, geld en zorgen.
Adressen van collega NVM-aankoopmakelaars in Den Haag vindt u op Funda.nl.
Deze informatie is door ons met de nodige zorgvuldigheid samengesteld. Onzerzijds wordt echter geen enkele aansprakelijkheid aanvaard voor enige onvolledigheid, onjuistheid of anderszins, dan wel de gevolgen daarvan. Alle opgegeven maten en oppervlakten zijn indicatief.
Koopovereenkomst pas rechtsgeldig na ondertekening:
Een mondelinge overeenstemming tussen de particuliere verkoper en de particuliere koper is niet rechtsgeldig. Met andere woorden: er is geen koop. Er is pas sprake van een rechtsgeldige koop als de particuliere verkoper en de particuliere koper de koopovereenkomst hebben ondertekend.
Dit vloeit voort uit artikel 7:2 Burgerlijk Wetboek. Een bevestiging van de mondelinge overeenstemming per e-mail of een toegestuurd concept van de koopovereenkomst wordt overigens niet gezien als een 'ondertekende koopovereenkomst'.
Overdracht
- Vraagprijs
- € 492.500 k.k.
- Status
- Beschikbaar
- Aanvaarding
- In overleg
- Bijdrage VvE
- € 205.77 p/m
Bouw
- Object type
- Portiekflat, appartement
- Soort bouw
- Bestaande bouw
- Bouwjaar
- 2001
- Soort dak
- Plat dak bedekt met overig
Oppervlakte en inhoud
- Woonoppervlakte
- 91 m²
- Inhoud
- 282 m³
- Externe bergruimte
- 6 m²
- Gebouwgeb. buitenruimte
- 7 m²
Indeling
- Aantal kamers
- 3 kamers (2 slaapkamers)
- Aantal badkamers
- 1 badkamer
- Badkamervoorzieningen
- Dubbele wastafel, wastafelmeubel, inloopdouche, wasmachineaansluiting
- Aantal woonlagen
- 1 woonlaag
- Voorzieningen
- Mechanische ventilatie, buitenzonwering, lift, glasvezel kabel
Energie
- Energielabel
- A
- Energielabel registratie
- 30-10-2025
- Isolatie
- Dakisolatie, muurisolatie, vloerisolatie, volledig geïsoleerd, hr glas
- Verwarming
- Cv-ketel
- Warm water
- Cv-ketel
- Cv ketel
- Combiketel gas gestookt uit 2025 (eigendom)
Buitenruimte
- Ligging
- Aan bosrand, aan water, aan rustige weg, in woonwijk, vrij uitzicht
- Balkon / dakterras
- Balkon
- Tuin
- Geen tuin
Bergruimte
- Schuur / berging
- Box
- Voorzieningen
- Voorzien van elektra
Garage
- Soort garage
- Geen garage
Parkeergelegenheid
- Soort parkeergelegenheid
- Op afgesloten terrein
VvE checklist
- Inschrijving KvK
- Ja
- Jaarlijkse vergadering
- Ja
- Periodieke bijdrage
- Ja, € 205.77 p/m
- Reservefonds aanwezig
- Ja
- Onderhoudsplan
- Ja
- Opstalverzekering
- Ja
Energieverbruik in 's-gravenhage
Energielabel deze woning
Energielabel A
Publicatie energielabel: 30-10-2025
Stroomverbruik per jaar
(Gemiddelde appartement in 's-gravenhage)
Gasverbruik per jaar
(Gemiddelde appartement in 's-gravenhage)
* Cijfers zijn afkomstig van het CBS en bedoeld als indicatie en kunnen verschillen voor deze woning
Indicatie hypotheeklasten
Eigen inleg:
Spaargeld / overwaarde
Rente:
Laagste 10-jaars rente
Laagste 10-jaars rente
2,78% - Centraal Beheer - NHG
3,04% - Centraal Beheer - 80%
Laagste 20-jaars rente
3,29% - Centraal Beheer - NHG
3,52% - Centraal Beheer - 80%
Laagste 30-jaars rente
3,41% - Centraal Beheer - NHG
3,7% - Argenta - 80%
Hypotheek:
Bruto maandlasten: € 0 p/m
Netto maandlasten: € 0 p/m
Hoe berekenen we dit?
Het rentepercentage is gebaseerd op de laagste 10 jaars vaste rente voor één hypotheekdeel. De vermelde rente (3.04% zonder NHG) is gecontroleerd op 17-04-2026. Deze berekening is gebaseerd op een annuïteitenhypotheek die volledig wordt afgelost, waarbij de maandlasten gedurende de gehele looptijd gelijk blijven. De werkelijke rente en netto maandlasten kunnen variëren, afhankelijk van uw persoonlijke situatie en de hypotheekverstrekker. Raadpleeg een financieel adviseur voor een nauwkeurige berekening en advies. Aan deze berekening kunnen geen rechten worden ontleend; het dient enkel als indicatie.
Documentatie
Kadastrale kaart
Leefomgeving
WOZ waarderapport
BAG uittreksel
Brochure
Plattegronden PDF
Bezoek onze website
Bezichtiging
Bod uitbrengen
Waardebepaling
Zoekopdracht
Alles downloaden
Zonnegrenzen bekijken
Inwoners in 's-gravenhage
Cijfers voor postcodegebied 2492
- Totaal aantal inwoners
- 12525 inwoners
- Mannen
- 50%
- Vrouwen
- 50%
Inwoners in 's-gravenhage
Cijfers voor postcodegebied 2492
- tot 15 jaar
- 19%
- 15 tot 25 jaar
- 14%
- 25 tot 35 jaar
- 20%
- 45 tot 65 jaar
- 34%
- 65 en ouder
- 12%
Huishoudens in 's-gravenhage
Cijfers voor postcodegebied 2492
- Eenpersoons zonder kinderen
- 20%
- Meerpersoons zonder kinderen
- 26%
- Huishoudens zonder kinderen
- 46%
Huishoudens in 's-gravenhage
Cijfers voor postcodegebied 2492
- Huishoudens met één kind
- 9%
- Huishoudens met meerdere kinderen
- 44%
- Huishoudens met kinderen
- 53%
Woningen in 's-gravenhage
Cijfers voor postcodegebied 2492
- Woningen voor 1945
- 1%
- Woningen tussen 1945 en 1965
- 1%
- Woningen tussen 1965 en 1975
- 1%
- Woningen tussen 1975 en 1985
- 1%
- Woningen tussen 1985 en 1995
- 1%
Woningen in 's-gravenhage
Cijfers voor postcodegebied 2492
- Woningen tussen 1995 en 2005
- 81%
- Woningen tussen 2005 en 2015
- 18%
- Woningen na 2015
- 1%
- Huurwoningen
- 30%
- Koopwoningen
- 70%
Overige in 's-gravenhage
Cijfers voor postcodegebied 2492
- Gemiddelde WOZ waarde
- € 351.000,-
- Personen onder de 65 met uitkering
- Niet beschikbaar
Overige in 's-gravenhage
Cijfers voor postcodegebied 2492
- Adressen per km²
- 1465
- Stedelijkheid (schaal 1 op 5)
- 60%
Indien u vragen heeft of u wilt een bezichtiging inplannen, dan kunt u gebruik maken van het formulier hiernaast. Er zal daarna op korte termijn contact met u worden opgenomen.
Willem Dreeslaan 214
2729NJ, Zoetermeer
079 - 203 3059 info@kleurrijkmakelaars.nl www.kleurrijkmakelaars.nlContact opnemen
Kleurrijk NVM Makelaars & Taxateurs Zoetermeer
Bij Kleurrijk NVM Makelaars & Taxateurs staan wij voor u klaar. Bent u op zoek naar een makelaar die altijd bereikbaar is, snel handelt en u begeleidt bij de complexe aspecten van de aan- of verkoop van uw woning? Dan bent u bij ons aan het juiste adres. Met jarenlange ervaring in Zoetermeer, Lansingerland en Rotterdam bieden wij u deskundig advies. Wij verwelkomen u graag op ons hoofdkantoor in Zoetermeer aan de Willem Dreeslaan 214.
Kleurrijk NVM Makelaars & Taxateurs is de juiste keuze als u:
• Op zoek bent naar een specialist in aan- en verkoopbegeleiding;
• Waarde hecht aan laagdrempelige communicatie;
• Een voorkeur heeft voor duidelijke en directe communicatie;
• Belangrijk vindt dat uw makelaar goed naar u luistert;
• Het prettig vindt als uw makelaar flexibel beschikbaar is;
• Altijd direct contact wilt met uw makelaar;
• Een onafhankelijke taxatie wenst van uw woning door een van onze registertaxateurs (NWWI/NRVT).
Passie voor het vak
Vinod Lachmon, Register NVM-makelaar, heeft jarenlange ervaring opgedaan bij diverse grote makelaarskantoren in regio’s zoals Zoetermeer, Rotterdam, Lansingerland en Gouda. Hij beschikt over uitgebreide kennis en een groot netwerk. Vinod onderscheidt zich door zijn betrokkenheid, juridische precisie en de bereidheid om ook na de aan- of verkoop voor zijn klanten klaar te staan.
Nieuwste reviews
-
Natuursteenlaan 103
In eerste instantie verwachtten wij een goede entree foto en een goede volgorde van de reportage. Wij vonden het rommelig en daardoor minder...
-
Oriëntblauw 4
Soepel en open gesprek, prima communicatie en afwikkeling. Duidelijke meldingen als er wat gedaan moest worden en ook waarom.
-
Natasha Rijnbeek
Een aantal jaar geleden ontmoette ik Vinod voor een taxatie en hij heeft toen een prettige, rustige en deskundige indruk achtergelaten. Toe...